1 / 13

1-кімн. кв., 40 м², 4/5 поверх

6 990 000 РУБ

Севастополь, Ленинский, Генерала Коломийца ,, 11Б   •  На мапі
Кімнат1
Площа40 м²
Житлова19 м²
Кухня10 м²
Поверх4 з 5

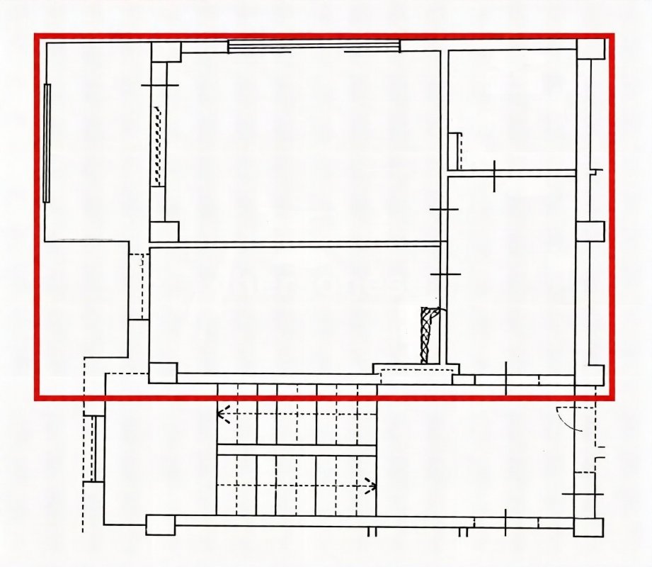
Представляю вашему вниманию однокомнатную квартиру в современном доме 2015 года постройки,  по адресу: ул. Генерала Коломийца.

Квартира предлагается в черновой отделке.

Преимущества, которые вы оцените:

Продуманная планировка: изолированная комната правильной формы (12,5 м²) с выходом на большую лоджию, широкий коридор (6,9 м²) с удобным местом под шкаф-купе и совмещенный санузел (4 м²).

Высокие потолки: 2,75 м.

Комфорт и экономия:

Центральное водоснабжение и автономное газовое отопление (АГВ) обеспечат тепло и уют в любое время года.

Благоустроенный двор: чистый подъезд, доброжелательные соседи, достаточное количество парковочных мест и современная детская площадка.

Развитая инфраструктура для вашего удобства:

Дом расположен в районе с отличной транспортной доступностью – остановка общественного транспорта находится практически у дома. В шаговой доступности расположены детские сады, школы, гимназии, крупнейший рынок Севастополя, салоны красоты и медицинские клиники. Всего 5 минут до спортивного клуба, 10 минут до торговых центров Sea Mall и «Апельсин», а также до центра города. До живописных пляжей Севастополя можно добраться всего за 20 минут на транспорте.

Идеальный выбор для жизни и инвестиций:

Эта квартира подходит как для собственного проживания, так и для выгодной сдачи в аренду. Мы предлагаем гибкие условия покупки: наличный расчет, ипотека, материнский капитал и жилищные сертификаты. Все документы РФ проверены юристами и полностью готовы к сделке. Мы гарантируем профессиональное сопровождение на всех этапах оформления права собственности.

Не упустите свой шанс стать обладателем этой замечательной квартиры! Звоните прямо сейчас, чтобы узнать подробности и договориться о просмотре!

Тип об'єктуОкрема квартира
Id оголошення796349
Оголошення додано27.03.2026
Оголошення оновлено27.03.2026

Повідомлення

Якщо Ви не заповнили попереднє поле, то вкажіть місто, що цікавить Вас (той місто, в якому Ви хочете придбати або орендувати нерухомість):


У обране
Поділитися
Подзвонити Повідомлення