1 / 48

Будинок, 225 м², 2 поверхи, 6 кімнат, 5 спалень, 10 сот.

195 000 USD  •  4% комісія

Дніпро, АНД, Балканский переулок   •  На мапі

Довгыша
Кімнат6 роздільні
Спалень5
Площа225 м²
Житлова109 м²
Кухня15 м²
Ділянка10 сот.
Поверхів2

Продажа дома для комфортного проживания семьи

Двухэтажный, мансардного типа с чердаком, 2010 года постройки.

Материал постройки: сакский ракушечник, толщина кладки - 400 мм, с наружным утеплением пенопластом 100 мм, с отделкой; ж/б перекрытие между 1 и 2 этажом; капитальная лестница на 2-й этаж (отделка – бук); крыша – деревянный каркас, гидро-пароизоляция, утепление – 200 мм, Осв – плита, битумная черепица.

Дом с архитектурной изюминкой – второй свет, отделка в классическом стиле.

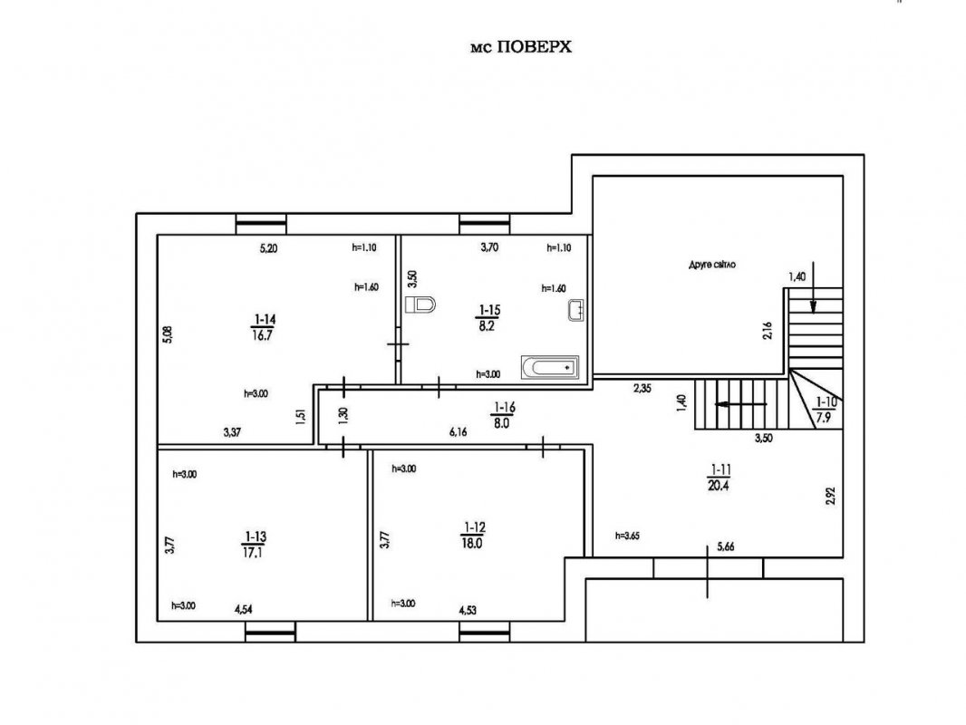
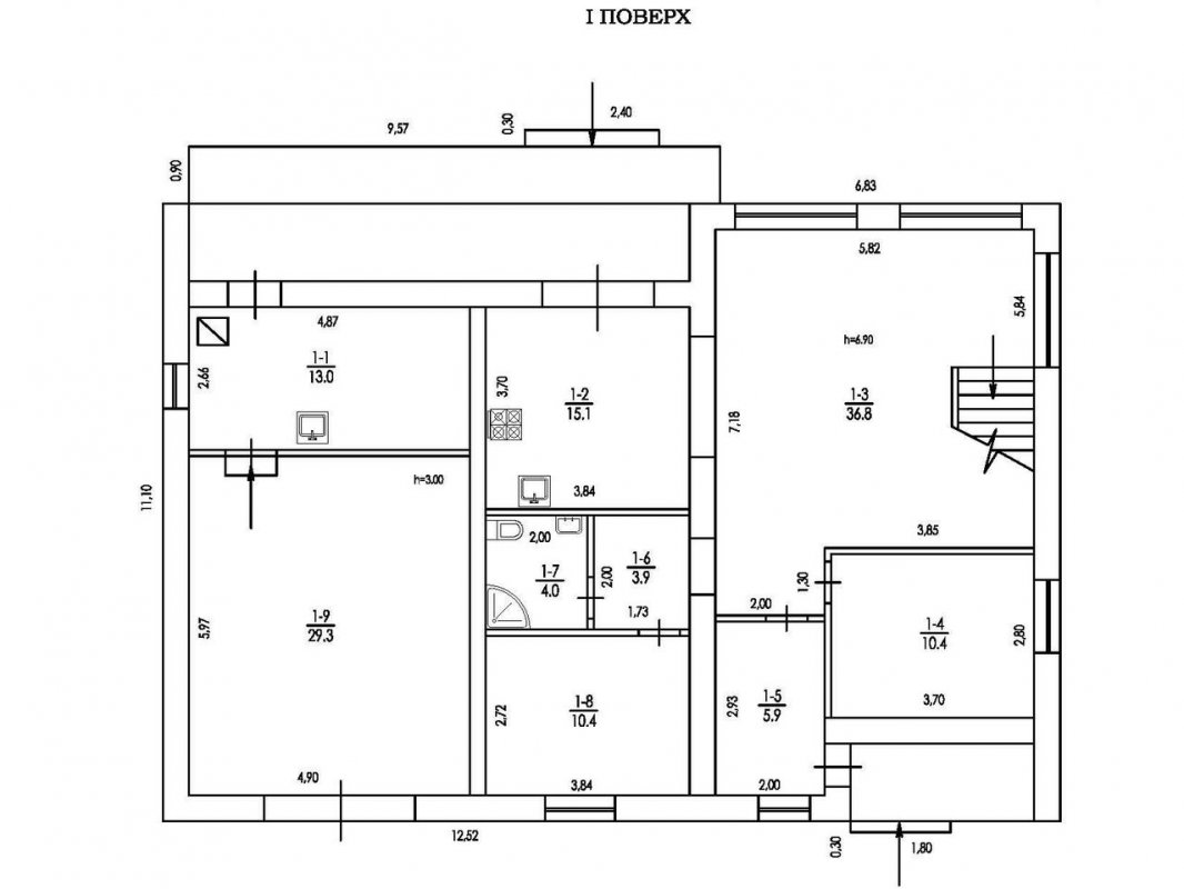
Планировка:

1 этаж: крыльцо, прихожая, большая светлая гостиная, кухня- столовая с выходом на террасу, две раздельные комнаты, санузел с душем, отдельное помещение - прачечная;

2 этаж (мансардный): антресоль с выходом на лоджию, три раздельные комнаты (из одной – непосредственный выход в санузел), просторный санузел с ванной, выход на чердак (складная чердачная лестница, площадь чердака – 5*16 = 80 м. кв).

Отапливаемый гараж 29 кв. м, со стеллажами и настенными кронштейнами для хранения автошин, роллетные ворота с электроприводом, дистанционный пульт управления.

Перед гаражом – красивый деревянный навес на 2 авто (6*6 м), накрыт ударопрочным, не пропускающим ультрафиолет поликарбонатом. Въезд – откатные ворота с электроприводом, дистанционный пульт управления.

Отопление и горячая вода: двухконтурный газовый котел с закрытой камерой сгорания, 30 квт. Стальные радиаторы + теплый водяной пол на первом этаже (кухня-столовая, санузел).

Система подачи и подготовки воды: скважина, насосная станция, укомплектованная частотным регулятором оборотов - в доме всегда стабильное давление воды; механический фильтр; система смягчения воды для домашнего пользования, на кухне – фильтр обратного осмоса (подготовка питьевой воды).

Канализация: 3 выгребные ямы, связанные между собой по принципу септика (перелив). Ассенизация 1 раз в полгода (для семьи из 5 человек).

Действующая солнечная электростанция мощностью 15 квт (трехфазный «сетевой» инвертор, полностью перекрывает собственное потребление + излишки на продажу по «зеленому» тарифу, зафиксированному до 2030 г). Доход от продажи излишков полностью перекрывает затраты на газ. + однофазны «гибридный» инвертор с аккумулятором на 10 квт (резервное питание электричеством всех необходимых потребителей в период отключений, до 24 часов (зависит от уровня нагрузки)

Охранная сигнализация с действующим договором.

Автоматическая подземная система полива газона, плодоносящий сад.

Имеется вольер для собаки, фундамент под баню.

Приватизированный земельный участок 10 соток.

Полный пакет документов на куплю-продажу.

Продажа в формате "заходи и живи".

Дом ожидает нового владельца!

Подробнее по телефону.

Тип об'єктуБудинок
Id оголошення744354
Оголошення додано25.01.2026
Оголошення оновлено27.03.2026

Повідомлення

Якщо Ви не заповнили попереднє поле, то вкажіть місто, що цікавить Вас (той місто, в якому Ви хочете придбати або орендувати нерухомість):


У обране
Поділитися
Подзвонити Повідомлення