1 / 17

Будинок, 120 м², 2 поверхи, 5 кімнат, 10 сот.

170 000 USD

Васильків, Зелений Бір, Зелений Бір   •  На мапі
Кімнат5
Площа120 м²
Ділянка10 сот.
Поверхів2

Сучасний автономний будинок (120 м) с. Зелений Бір

Загальний опис:

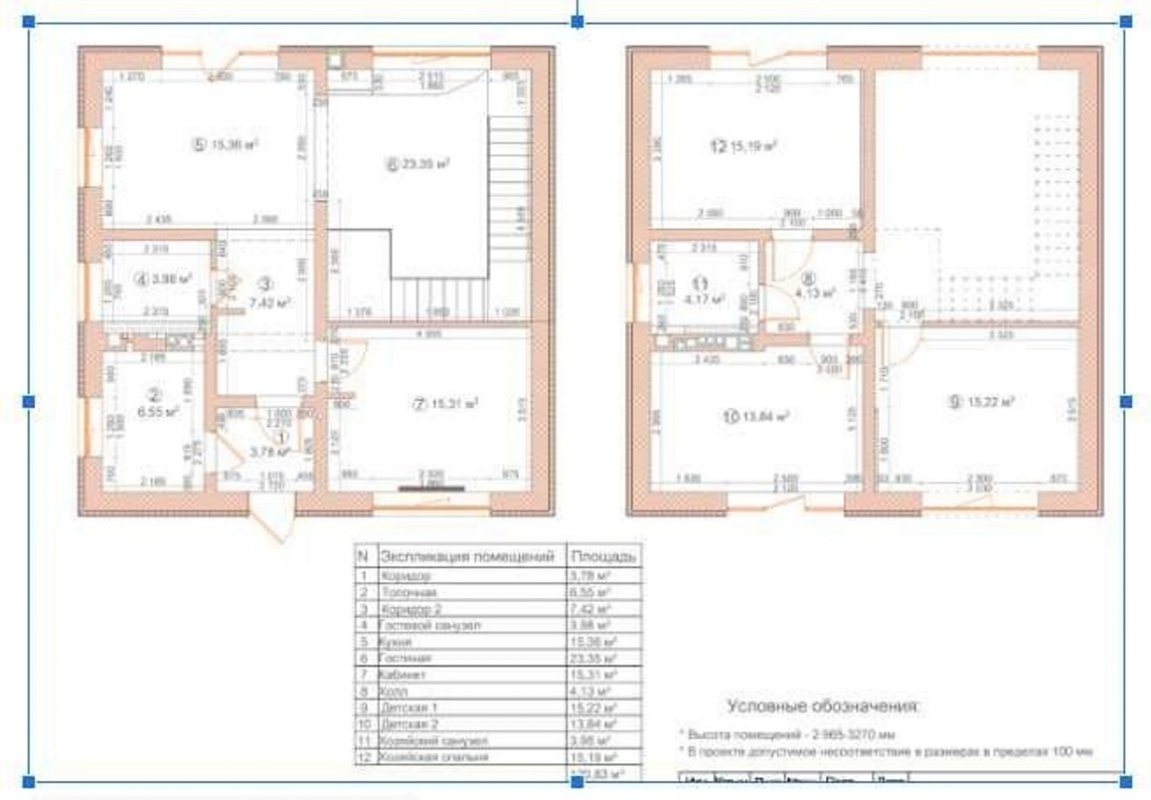
Просторий будинок, побудований у 2020 році, готовий до життя. Загальна площа 120 кв. м, 5 кімнат, 2 санвузли та 2 тераси по 20 кв. м кожна. Навіс для 2 авто, сарай для зберігання речей та вольєр для собаки. Ділянка площею 10 соток.

Локація:

Знаходиться в котеджному містечку “Гетьманський 2” в с. Зелений Бір, 20 км від Києва та лише за 1.5 км від Глевахи, де розташовані необхідні магазини, поштове відділення та банки, футбольне поле, скейт парк та різні гуртки для дітей.

Забезпечення водою:

Свердловина глибиною 60 метрів;

Система очистки води;

Трьохрівневий септик 12 м. куб;

Система опалення:

Електрокотел потужністю 16 квт;

Можливість встановлення додатково джерела опалення;

Теплі підлоги;

Будинок утеплений 10 пінопластом;

Матеріал стін – керамоблок;

Камін, який може обігрівати більшість кімнат;

Автоматика температури підлоги, для економії та комфорту;

Електрика:

3 фази, 30 квт;

Безпека:

Система Ajax з внутрішніми сенсорами та датчиками охорони периметра;

Автономність:

12 квт сонячні панелі;

Гібридний інвертор однофазний;

Акумулятор на 5 квт-год;

Бензиновий генератор потужністю 8 квт однофазний;

Додатково:

Проведення багато інженерних комунікацій, що дозволяють встановити тепловий насос або альтернативне джерело опалення. Можливість встановлення фанкойлів та насоса для рекуперації повітря.

В деяких кімнатах відсутні декілька вимикачів світла, а також не встановлені певні світильники та леди.

Зв’язок через Телеграм, Вайбер, Ватсап

Тип об'єктуБудинок
Id оголошення700382
Оголошення додано21.05.2024
Оголошення оновлено21.10.2024

Повідомлення

Якщо Ви не заповнили попереднє поле, то вкажіть місто, що цікавить Вас (той місто, в якому Ви хочете придбати або орендувати нерухомість):


У обране
Поділитися
Подзвонити Повідомлення