1 / 14

Таунхаус, 106 м², 3 поверхи, 5 кімнат, 1 сот.

77 300 USD

Петропавловская Борщаговка, Петропавловская Борщаговка, Мельниченко   •  На мапі
Кімнат5
Площа106 м²
Ділянка1 сот.
Поверхів3

Кутовий Таунхаус 106 м. кв. з просторим двориком 70 м. кв

Від власника. Таунхаус знаходиться в с. Петропавлівська Борщагівка.

Вулиця Мельниченко, 43.

Ремонт не починали. Готові лише планування та дизайн проект для першого поверху - віддамо в подарунок:)

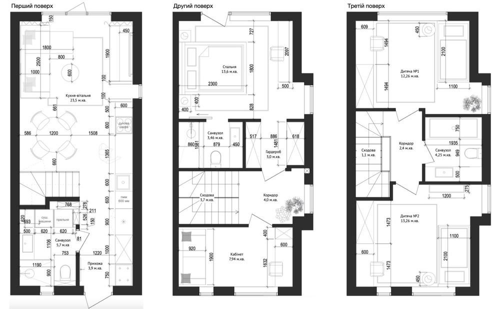
Затишна спальня з гардеробом та власним санвузлом.

Кабінет.

Дві дитячих зі своїм санвузлом.

Санвузол-пральня на першому поверсі та світла простора кухня-вітальня.

На завершальному етапі будівництва продамо таунхаус (документи на руках).

Без ремонту.

Електрика 10 квт.

Свердловина.

Станція біологічної очистки стічних вод (біосептик).

Додатково до базової комплектації було зроблено:

+ утеплення мінеральною кам’яною ватою

+ широкий балкон зі спальні 2 го поверху

+ бокове вікно вітальні

+ збільшення ділянки (задній дворик близько 70 м. кв)

+ індивідуальне планування та дизайн-проект

+ візуалізації та підбір матеріалів для першого поверху

Обов’язково перегляньте його вживу - це буде чудовий комфортний дім для вашої сім’ї:)

Тип об'єктуТаунхаус
Id оголошення682277
Оголошення додано10.10.2023
Оголошення оновлено10.10.2023

Повідомлення

Якщо Ви не заповнили попереднє поле, то вкажіть місто, що цікавить Вас (той місто, в якому Ви хочете придбати або орендувати нерухомість):


У обране
Поділитися
Подзвонити Повідомлення