1 / 13

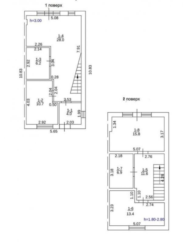
Таунхаус, 100 м², 2 поверхи, 3 кімнати, 2 сот.

40 000 USD

Гостомель, Гостомель, Приозерна   •  На мапі
Кімнат3
Площа100 м²
Ділянка2 сот.
Поверхів2

Терміново! Дешево продаж будинку - таунхаусу в смт Гостомель, 100м. кв

Продаж таунхаусу в смт Гостомель вул. Приозерна 100 м. кв.

Ділянка - 2 сотки.

Відмінна локація, Чудовий краєвид. Поруч озера. Бучанський парк в пішій доступності. Інфраструктура:

- заведена електрика (16 Квт),

- Центральна каналізація,

- власна скважина,

- Підготовка під комин.

Технічні характеристики:

- Стіни: газоблок товщиною 300 мм;

- Фундамент: монолітно-стрічковий + монолітна плита;

- Перекриття між 1 і 2 поверхом: залізобетонна монолітна плита;

- Утеплення: термопанелі з пінопластом в 100 мм.;

- Вікна: металопластиковий склопакет, енергозберігаючі;

- Дах: металочерепиця;

- Перегородки між кімнатні: газоблок товщина 100 мм;

- Виконано підготовку під комин (Комин може виступати додатковим до електрики опаленням).

Так як плита перекриття між поверхами залізобетонна монолітна, то майбутній власник може замовити свій проект розташування кімнат. Дана опція входить у вартість будинку.

Стадія побудови - побудований Тривають роботи по оздобленню фасадів та облаштування прибудинкової території.

Можлива розстрочка!

Тип об'єктуТаунхаус
Id оголошення681529
Оголошення додано27.09.2023
Оголошення оновлено27.09.2023

Повідомлення

Якщо Ви не заповнили попереднє поле, то вкажіть місто, що цікавить Вас (той місто, в якому Ви хочете придбати або орендувати нерухомість):


У обране
Поділитися
Подзвонити Повідомлення