1 / 19

Будинок, 120 м², 2 поверхи, 5 кімнат, 9 сот.

90 000 USD

Фастів, Яблоновка, Яблоновка   •  На мапі
Кімнат5
Площа120 м²
Ділянка9 сот.
Поверхів2

Будинок в с. Яблунівка 120 кв. м від власника

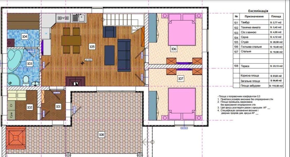
Продається будинок в СТ Яблунівські сади с. Яблунівка Фастівського (раніше Макарівського) району, 35 км від Києва. Поряд ліс, річка, озеро. Загальна площа 120 кв. м. + тераса 23 кв. м, ділянка 8,9 соток.

Будинок будували для себе з якісних матеріалів. Побудований з кримського ракушняку, зовнішнє утеплення - пінополістерол 10 см під декоративною штукатуркою, ширина стіни близько 50 см, дах фінська металочерепиця. Гарне планування: 1 поверх – кухня-вітальня 28 кв. м., 2 спальні по 10 кв. м., прихожа/котельня, санвузол з душовою кабіною, сауна. 2 поверх - друга вітальня 25 кв. м, спальня 20 кв. м, санвузол 2,5 кв. м., засклений балкон 4 кв. м.

Перший поверх майже закінчений ремонт (ламінат, плитка, двері, шпалери у спальнях), другий поверх під чистову обробку. Дизайн-проект всього будинку у подарунок. Сходи між поверхами металевий каркас, вікна Rehau (двокамерні), фурнітура Maco. Встановлено підігрів підлоги. Всі комунікації підведені та розведені по будинку: підігрів підлоги, вода – свердловина 25 м; світло – 16 квт., електрокотел 12 квт, каналізація – септик, укладено тротуарну плитку.

Є можливість під’єднання до газу (по вулиці). Житловий кооператив закритого типу - шлагбаум, закриті вулиці, відеонагляд. Пропозиція від власника без комісії для покупця! Торг $$$

Тип об'єктуБудинок
Id оголошення681052
Оголошення додано21.09.2023
Оголошення оновлено21.09.2023

Повідомлення

Якщо Ви не заповнили попереднє поле, то вкажіть місто, що цікавить Вас (той місто, в якому Ви хочете придбати або орендувати нерухомість):


У обране
Поділитися
Подзвонити Повідомлення