1 / 44

Офіс, 142.7 м²

345 000 USD  •  0% комісія

Київ, Голосіївський, Набережно-Корчуватська, 29   •  На мапі

ЖК Тиха Гавань
Площа142.7 м²
Корисна142.7 м²
Поверх2 з 6

Офіс 142 кв. м. з видом на Дніпро. Новий ремонт. Без комісійних!

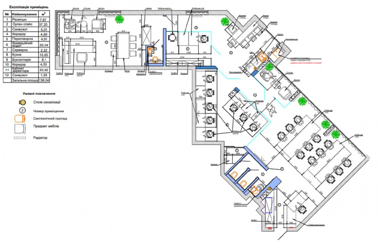
Продаж комерційного приміщення з новим ремонтом на 22 робочих місця.

Планування починаючи зі входу:

- Openspace на 14 робочих місць + 2 санвузли;

- окрема кімната на 5 робочих місць + серверна кімната;

- окрема переговорна кімната;

- кухня з барною стійкою;

- окрема кімната на 3 робочих місця;

- кабінет директора зі столом переговорів + сан вузол.

В офісі встановлено сигналізацію Ajax, пожежну сигналізацію, відеоспостереження, система клімат-контролю.

Кухня облаштована вбудованою посудомийною машиною, холодильником з морозильною камерою, чайником та кавомашиною. Барна стійка на 5 персон.

Офіс обладнаний системою Wi-Fi, окрім того, до кожного робочого місця заведено окремий інтернет кабель та IP-телефонія (оцінять ті кому потрібна швидка стабільна мережа).

Встановлено три телевізори на офіс, у тому числі в кабінеті директора для проведення конференцій, презентацій і не тільки.

Продумано та практично розведено усі комунікації по офісу. Ви не побачите жодних проводів та комунікацій до робочих місць.

Ремонт зроблений по дизайн проекту з дорогих якісних будівельних матеріалів та меблів, які замовлялись з Європи.

Без комісійних для моїх покупців!

Телефонуйте.

ПоложенняЧастина житлової будівлі
Тип об'єктуОфіс
Фасадний вхідНі
Тип будинкуНовобудова
Id оголошення657803
Оголошення додано15.12.2022
Оголошення оновлено07.03.2023

Повідомлення

Якщо Ви не заповнили попереднє поле, то вкажіть місто, що цікавить Вас (той місто, в якому Ви хочете придбати або орендувати нерухомість):


У обране
Поділитися
Подзвонити Повідомлення