1 / 24

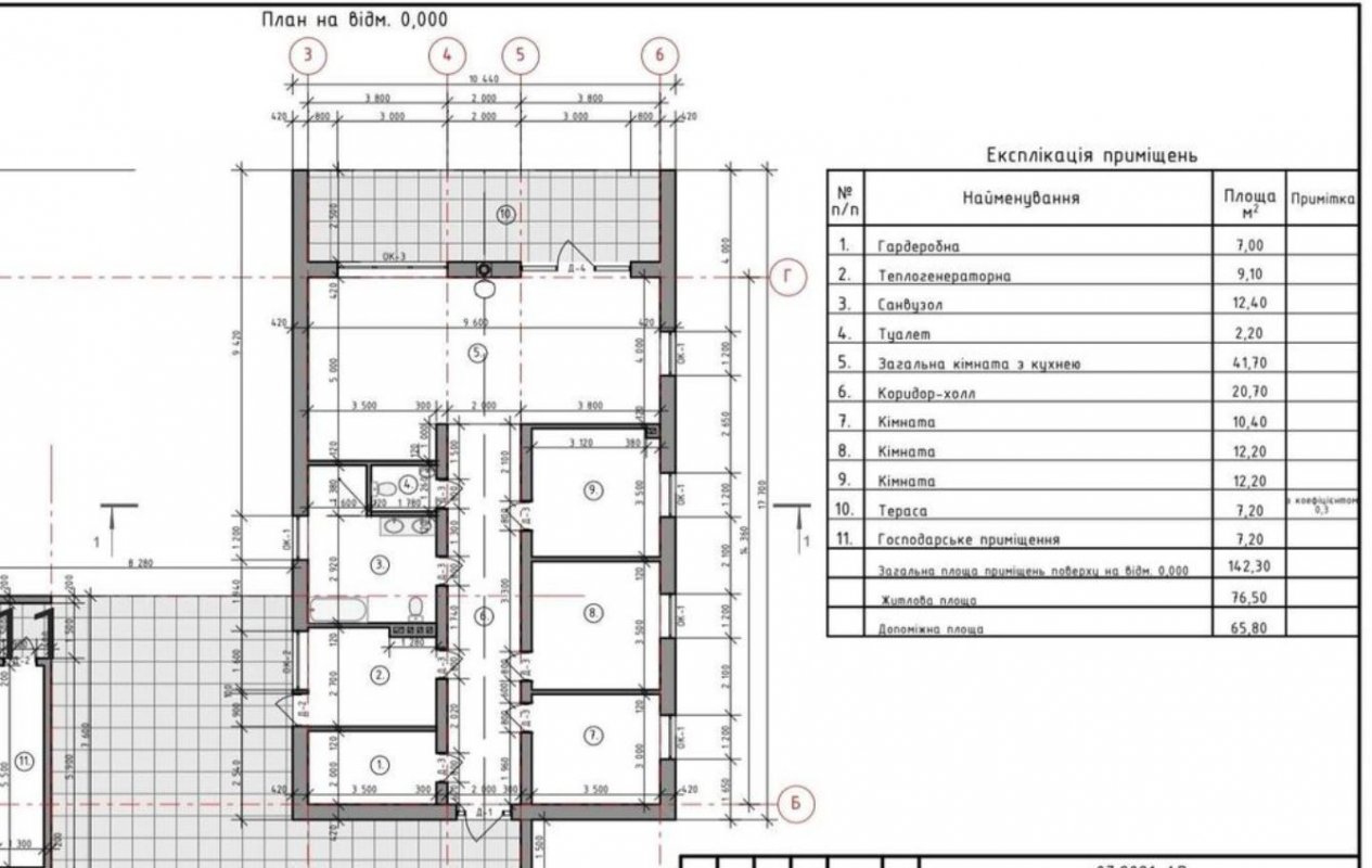
Будинок, 142 м², 1 поверх, 4 кімнати, 12 сот.

110 000 USD

Новосілки, Вышгородский, Лобановского   •  На мапі
Кімнат4
Площа142 м²
Ділянка12 сот.
Поверхів1

Будинок Барн-Скандинавія. (Власник)

Будинок був збудований за Скандинавським проектом, з другим світлом.

В якому головною перевагою є чітке розміщення і правильне використання площі, при цьому не втративши простір.

Загальна Площа-142м2.

-Господарське приміщення

- Криті паркомісця на 2-автомобілі

-Теплогенераторна кімната

-Гардероб

-2 Санвузли

-3 Кімнати

-Загальна кімната з обідньою зоною та виходом на вуличну терасу. З відмінним пейзажом, де можна спостерігати гарні заходи сонця (бо будинок попередньо розташовувався саме під дану ділянку)

Площа Ділянки-12 соток (з широким фасадом 25.44м)

Електроенергія- 15-Квт з лічильником і тарифом день ніч.

Свердловина-приєднана до будинку

Септик-приєднаний до будинку

Матеріал При Будівництві використовувався лише гарної якості та перевіреними брендами:

-Фундамент монолітна плита (з терміном відстоювання)

-Стіни Газоблок Aerok-300

-Утеплення: Цегляна клінкерна плитка (Німеччина) з утеплювачем (Польща) замовлялась за кордону. Стіни будинку базальтова вата 100 мм+пінопласт-100 мм+пінополістирол

-Покрівля утеплення вата-200 мм

-Вікна Rehau energo-70 (склопакет закачений газом аргон)

-Озеленення- завершено посадку нових насаджень, та чистка підрізка і удобрення вже існуючих багаторічних сосен на ділянці.

-Прописка можлива (межі села). В даний момент йдуть завершальні роботи по парканам і воротам.

Локація-цей будинок знаходиться в надзвичайно мальовничому та екологічному Новому масиві селища Новосілки. Має свою розвинену інфраструктуру де є, школи магазини, зупинки громадського транспорту. Селище багате на безліч озер та пляжі . В даній локації нові будинки та дуже привітні сусіди.

Логістика - Дуже зручне розташування селища відносно Вишгороду та Києва. Абсолютно 100 відсотково піддійте для постійного проживання

А також можемо організувати, зробити, проконсультувати, та проконтролювати по внутрішньому оздобленню під ключ. В тематиці скандинавії та мінімалізму або по вашому особистому дизайну. Власник!

Тип об'єктуБудинок
Id оголошення592932
Оголошення додано20.02.2022
Оголошення оновлено20.02.2022

Повідомлення

Якщо Ви не заповнили попереднє поле, то вкажіть місто, що цікавить Вас (той місто, в якому Ви хочете придбати або орендувати нерухомість):


У обране
Поділитися
Подзвонити Повідомлення