1 / 10

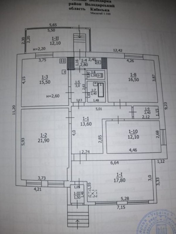
Будинок, 123 м², 1 поверх, 3 кімнати, 12 сот.

25 000 USD

Володарка, Володарский, Апрельская   •  На мапі
Кімнат3
Площа123 м²
Ділянка12 сот.
Поверхів1

Продам приватний будинок смт Володарка

Продам приватний будинок в смт Володарка. Добротний цегляний, на високому фундаменті будинок 1996 року. В будинку є всі необхідні централізовані комунікації (електрика, газ, вода, каналізація). 3 кімнати (22м, 16,5м, 12м), велика кухня (15,5м), велика прихожа, кладова, велика веранда, великий глибокий погріб. М/п вікна. Біля хати город, садок, великий двоповерховий цегляний сарай. Земля біля хати 12 сот приватизована.

Тип об'єктуБудинок
Id оголошення592370
Оголошення додано17.02.2022
Оголошення оновлено17.02.2022

Повідомлення

Якщо Ви не заповнили попереднє поле, то вкажіть місто, що цікавить Вас (той місто, в якому Ви хочете придбати або орендувати нерухомість):


У обране
Поділитися
Подзвонити Повідомлення