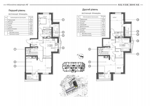
| | Без %! Сильвер Хаус 143.55м. кв м. Голосеевская Голосеевский просп., 74 | | 4 450 050 ГРН | 4-кімн. кв., 143.55 м², 25/26 поверх
Київ, Голосеевский просп. 74, район Голосеевский Ukraine/Kiev region/Kiev/sale
| | Предлогаю Вашему вниманию просторную 4 комнатн. квартиру в новом доме Сильвер Хаус,. Квартира расположена в зеленом районе Киева по адресу: Голосеевский просп., 74 ближайшее м. Голосеевская, ориентир - Голосеево. S квартиры - 143.55/74/25 м. кв.; на 25 етаже.
Сдача дома - 4 кв. 2021
Новый односекционный монолитно-каркасный термодом. Квартира после строителей, в квартире предусмотрено: входные противоударные двери, металлопластиковые окна с двухкамерным стеклопакетом, заведены электричество и вода. В жилых комнатах, коридорах и кухне - цементно-песчаная стяжка, в санузле и в ванных комнатах - гидроизоляция с цементной стяжкой. Установлены: радиаторы, счетчики электричества, холодной, горячей воды. 2-грузо пассажирских лифта. Развитая инфраструктура: школа, детский сад, магазины, банки, рестораны, кафе, аптеки. Отличная транспортная развязка ще | | Код 638581 | |
|