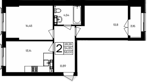
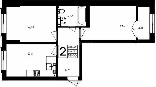
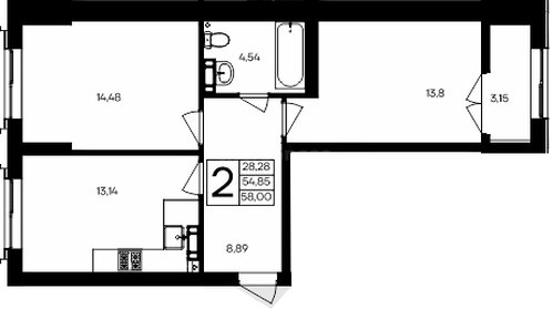
| | 2-кімн. кв., 78.9 м², 3/9 поверх | | Севастополь, Мате Залки , 86, район Балаклавский Ukraine/Krym/Sevastopol/sale
| | Жилой комплекс "Семисчастье" в Севастополе - идеальное место для вашего комфортного проживания на берегу Черного моря. Расположенный в живописном районе города, он предлагает широкий выбор квартир различной планировки и ценовой категории.
Уютные квартиры с видом на море и горы, современная инфраструктура, благоустроенная территория - все это делает "Семисчастье" идеальным выбором для тех, кто ценит комфорт и качество. Звоните, чтобы узнать больше о наших предложениях и стать одним из счастливых обладателей квартиры в жилом комплексе "Семисчастье".
В продаже имеются квартиры в жилом комплексе "Семисчастье" премиум-класса. Общая площадь составляет 78,9009 кв.м., при этом кухня - 30,58 кв.м. Высота потолков достигает 2,7 м.
Полная сумма в договоре, прямая продажа!
Семейная ипотека и материнский капитал!
Без комиссии, все оплачивает застройщик!
Если покупаете через нашу компанию, осуществляем приёмку квартиры!
❌ С агентствами не сотрудничаем, просьба не звонить!
ще | | | |
|